Aplica Diseño
Remodelación Sistema Producción Empresa RoySar
Año 2023
- San Carlos de Apoquindo
Asignatura
Detalle del Proyecto
Descripción
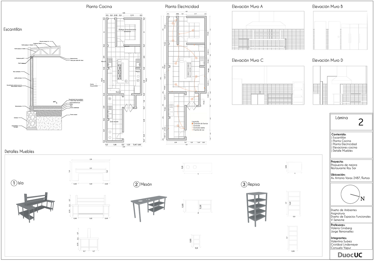
Restaurant RoySar, empresa familiar fundada en 1950, consta de Minimarket, Fábrica de empanadas y masas, Delivery y Restaurant. Tras un análisis y observación del funcionamiento e investigación exhaustiva de la Empresa RoySar, se concluye el rediseño, remodelación y optimización de los espacios existentes, debido a las problemáticas observadas y en forma específica enfocándose en la cocina y fábrica de empanadas, como sistema de producción, sin dejar de lado la espacialidad total. Se investiga las necesidades y requerimientos que definen los usuarios y el espacio funcional a desarrollar para establecer el re-diseño de los recintos, logrando una propuesta de optimización espacial para dicha empresa. Es así como nace el Proyecto por medio del análisis de los requerimientos y necesidades del usuario/cliente, considerando los criterios funcionales, estéticos, técnicos y económicos de la Fábrica - Restaurant RoySar.
PRESENTACIÓN FINAL: Consta de 2 instancias. Antes del examen se presenta el Proyecto a la directiva de la Empresa RaySar, generando feedback y conclusiones del Proyecto. Y el día del examen se presenta en la sala de clase por medio de una exposición verbal apoyada de láminas y maqueta virtual.
Empresa
ROYSAR
Tiempo de desarrollo
6°Semestre, Año 2023.


